-
Дома

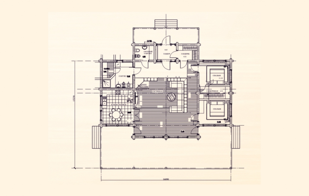
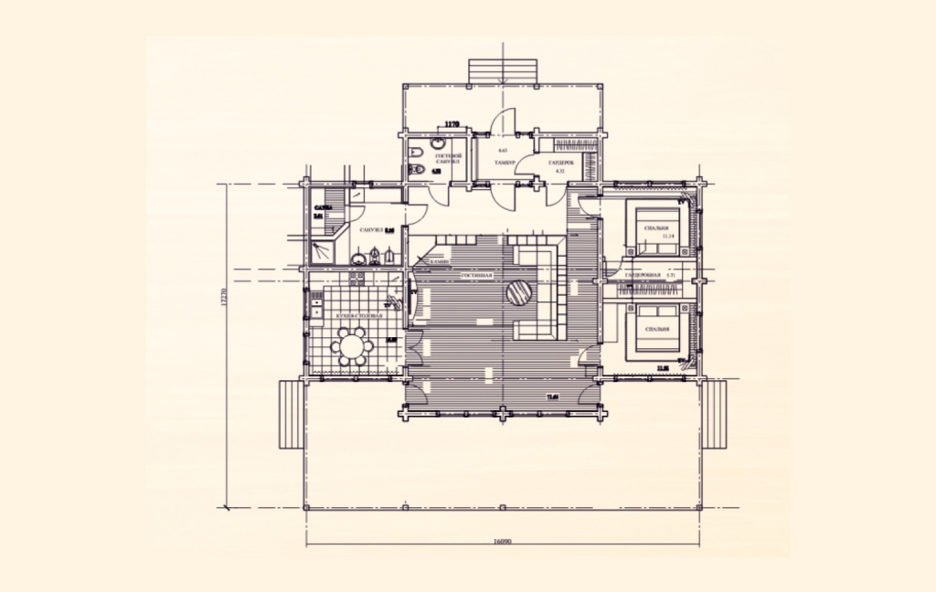
Дом «Ришелье» — 147.00 м2
Дом «Ришелье» — 147.00 м2
Клееный брус сохраняет все уникальные свойства живой древесины. Материал экологичен, долговечен и не требует дополнительной теплоизоляции стен.
-
Дома

«Зеленый» дом. Смешение современного и традиционного стилей
«Зеленый» дом. Смешение современного и традиционного стилей
Главной задумкой является использование большого количества дерева. Отличный пример баланса классики и современности
-
Дома

БАНЯ «ЕРМАКОВ» — 73 М2
БАНЯ «ЕРМАКОВ» — 73 М2
Дизайн данной бани разработан для максимально комфортного отдыха.Теплый контур — 49 кв.м. Терраса — 24 кв.м
-
Дома

Дерево в интерьере и экстерьере. Конструктивные деревянные элементы
Дерево в интерьере и экстерьере. Конструктивные деревянные элементы
Наличие конструктивных элементов, выполненных из дерева, помогут создать современный образ
Доставка товаров и грузоперевозки для людей знающим цену своему времени
Для наших Покупателей в Компании Парквэй работает служба доставки товаров
Мы доставим приобретенные Вами товары для строительства и ремонта в удобное для Вас место и время!
Так же Вы можете заказать грузоперевозки по всей РБ, и РФ. Автотранспортом, грузоподъемностью 3,5 и 10 тонн со стрелой манипулятора грузоподъемностью 3 тонны.








